Ampliación Edificio de vivienda y oficinas. - BIOCONS.com.py | Estudio de Arquitectura, Constructora, Diseño de Casas Sustentables, Viviendas, Oficinas, Asunción, Paraguay

Ampliación Edificio de vivienda y oficinas.


Nombre del Proyecto:Vivienda GvB unifamiliar a multifamiliar.
Proyectista: Arquitectos Nicolás Morales , Cheli Sakoda
Cliente: GvB
Colaboradores: Ana Gómez
Construcción: Arq. Nicolás Morales
Costo:  400u$ x m2
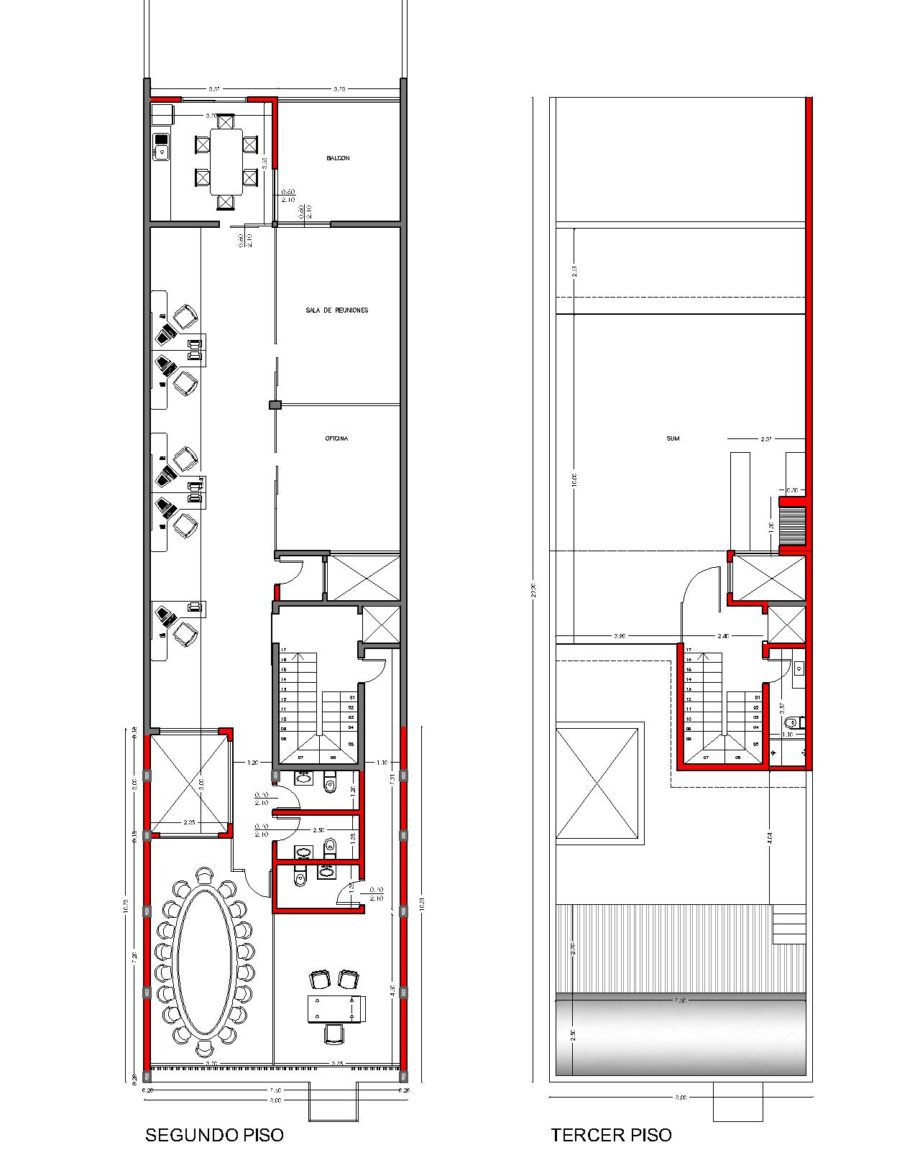
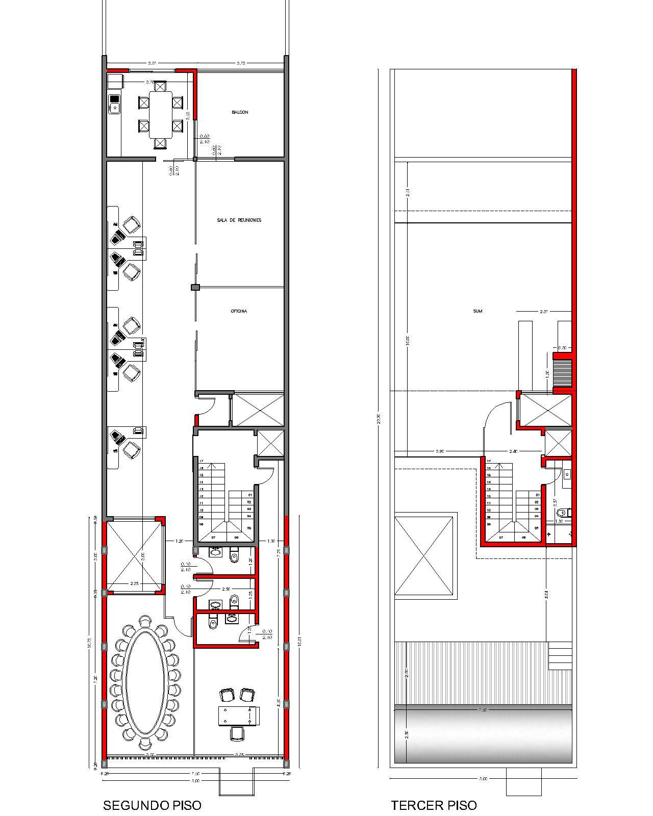
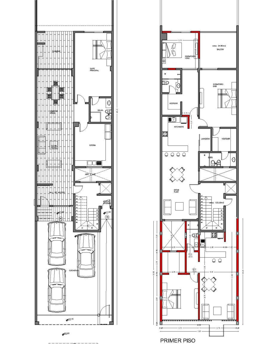
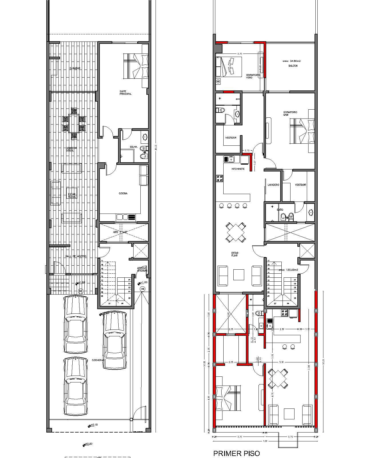
Programa: 
Esta ampliación de una vivienda unifamiliar a multifamiliar + piso oficina, en un terreno de la ciudad de Asunción de 8x44m aproximadamente, con orientación este-oeste, nos llevó a resolver variar necesidades utilizando al máximo la ocupación permitida.

Nuestro calor intenso sumado a una ciudad ineficiente, de pobres infraestructuras y sin espacios públicos de ocio y recreación de calidad, demanda a familias satisfacer sus necesidades en sus predios privados.

La piscina y el patio son casi necesarios para poder llevar una vida confortable en esta ciudad que crece anárquicamente sin respetar la biodiversidad causando un calentamiento año tras año generado por la isla de calor que emiten las construcciones, sumado al calentamiento global, ronda en temperaturas de 38 40 42 45 grados en primavera verano inclusive en otoño, con alta humedad.

La piscina generadora de la estructura colgante y de la fachada.

Ya que el terreno es angosto y demandaba 3 departamentos más 1 piso oficina, la piscina se sitúa en la azotea con un quincho con amenities, aprovechando esta estructura de vigas invertidas de gran dimensión, el edificio se “cuelga de la piscina”, mediante tensores los cuales ya sirven para estructurar un parasol de ladrillo a modo de enredadera, dado que la fachada recibe el oeste intenso, devastador, pero romántico de colores que cambian según el crepúsculo.

En planta baja se divide el acceso para la vivienda principal, y el edificio viviendas/oficina atraves de un muro poroso, accediendo a un espacio común que conecta verticalmente con una escalera preexistente a las demás dependencias.

La materialidad se propone a la vista, hormigón ladrillo y vidrio, que no necesitan gastos de mantenimiento anuales porque envejecen noblemente, y además generan un ahorro en las terminaciones además de dotar a la imagen del edificio identidad y belleza brutalista.

Vea + proyectos

Contáctenos!


Escribinos a nuestro Estudio de Arquitectura y Constructora.

Contactar por Whatsapp Clic Aquí