Reforma Camilo. - BIOCONS.com.py | Estudio de Arquitectura, Constructora, Diseño de Casas Sustentables, Viviendas, Oficinas, Asunción, Paraguay

Reforma Camilo.


Nombre del Proyecto: Reforma Camilo.
Proyectista: Arquitectos Nicolás Morales Saravia, Cheli Sakoda
Cliente: Camilo y Sra.
Colaboradores: Chebo Pereira, Luz Martínez.
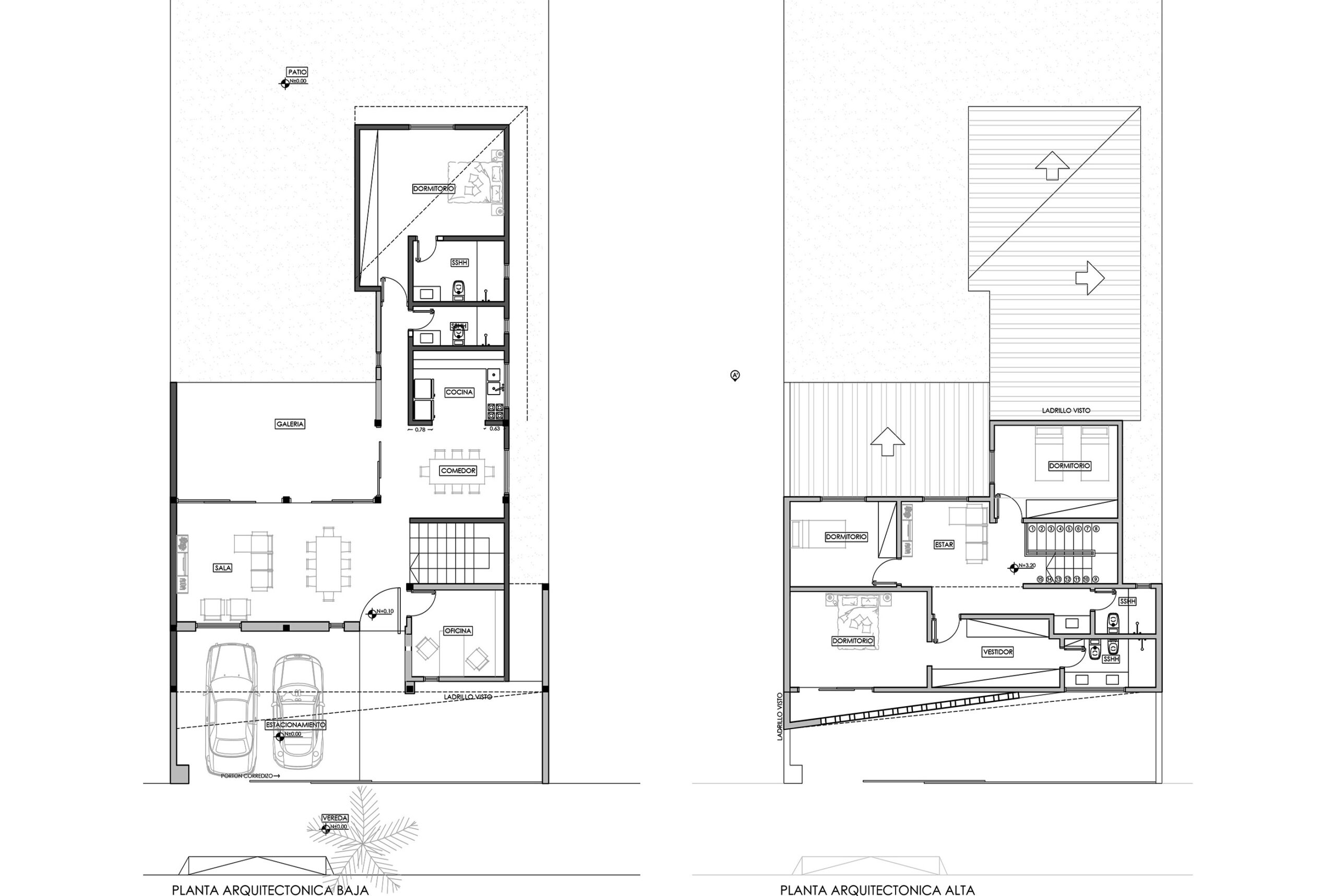
Construcción: 217m2
Ubicación: Lambaré, Paraguay
Fotografía: Leonardo Méndez
Memoria: 

Esta reforma y ampliación de una vivienda unifamiliar se ubica en la ciudad de Lambaré, dentro del Área Metropolitana de Asunción, Paraguay. El proyecto se desarrolla en un barrio consolidado, de morfología predominantemente horizontal, en un lote con orientación este-oeste.

La propuesta responde a las necesidades del comitente, priorizando la reutilización de la estructura existente en planta baja debido a las limitaciones presupuestarias. Se conservaron la mayoría de los muros de la preexistencia, se desmontó parcialmente la cubierta de tejas y se incorporó un segundo nivel sin afectar el resto del techo original.

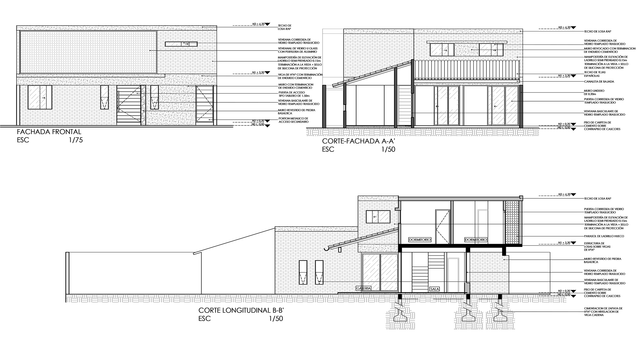
El principal desafío fue la orientación oeste, que expone la fachada al sol de la tarde. La respuesta fue concebir una envolvente de doble piel que actúa como barrera térmica. En planta baja, se duplicó el muro generando una cámara de aire ventilada; en planta alta, para mantener la relación visual con el entorno, se diseñó un balcón perforado con un parasol de ladrillos huecos, que tamiza la luz sin perder apertura hacia el barrio.

El voladizo del segundo nivel proyecta un semitecho que protege el acceso de las lluvias intensas y del sol del verano. Se utilizaron materiales locales: ladrillo semiprensado, hormigón a la vista, aberturas estándar, puertas de tirantería reciclada reutilizadas como mobiliario, iluminación LED y cubierta de bovedillas cerámicas. La galería posterior extiende el espacio social interior hacia el fondo del terreno, reutilizando el antiguo techo de tejas, y se convierte en un área intermedia de transición entre interior y exterior.

El clima subtropical del Paraguay obliga a pensar en estrategias pasivas, ventilación cruzada, luz natural filtrada y espacios intermedios como patios, galerías, voladizos y terrazas. A su vez, la cultura del barrio, con vida social extendida hacia la vereda, inspira la relación del proyecto con el entorno, privilegiando las rejas y balcones como elementos de transparencia y control social, en lugar de murallas opacas.

La reutilización de lo existente no solo fue una condición económica, sino una directriz conceptual. El proyecto reivindica el uso del ladrillo rojo cerámico como material principal por su nobleza, durabilidad y capacidad de diálogo con el contexto urbano. En síntesis, la obra expresa los principios fundamentales del estudio: honestidad material, sostenibilidad contextual y diálogo urbano.

PUBLICACIONES:

 

 

Vea + proyectos

Contáctenos!


Escribinos a nuestro Estudio de Arquitectura y Constructora.

Contactar por Whatsapp Clic Aquí