Nombre del Proyecto: Nuevas Oficinas y Planta de Producción Fábrica Dulcesar
Proyectista: Arquitectos Nicolás Morales, Cheli Sakoda
Cliente: Dulcesar
Colaboradores: Ana Gómez, Ricardo Céspedes
Construcción:
Ubicación San Lorenzo, Paraguay
Idea:
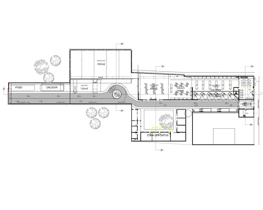
La Fábrica Dulcesar se encuentra ubicada en San Lorenzo Paraguay, una fábrica que fue creciendo sin un Plan Maestro y con muchos problemas funcionales y operacionales.
El crecimiento de la producción demanda una nueva nave industrial y reformular todo el funcionamiento de la fábrica.
Nuestra propuesta en primer lugar fue definir la circulación de camiones, luego diseñar una nueva nave industrial que prime en la ventilación natural y en la flexibilidad de usos, pero sobre todo cambiar la imagen de la fábrica de un simple galpón y pequeños bloques desconectados a una fabrica modelo didáctica y turística en el futuro.
Así como la industria del vino cambio de galpones ingenieriles a edificios arquitectónicos turísticos que comunican cierta cultura, conectados a un contexto, que deslumbran y educan a visitantes y turistas, pensamos que la industria de los dulces en nuestro país puede también agregar valor a la cultura y al turismo local.