Casa tras los árboles. - BIOCONS.com.py | Estudio de Arquitectura, Constructora, Diseño de Casas Sustentables, Viviendas, Oficinas, Asunción, Paraguay

Casa tras los árboles.


Nombre del Proyecto: Casa tras los árboles.
Proyectista: Arquitectos Nicolás Morales , Cheli Sakoda
Cliente: CrediOnce
Colaboradores:Gabriela Sotelo, Luz Martínez
Construcción: 300m2
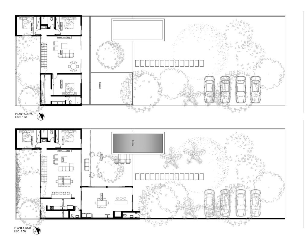
Memoria:

Implantar una casa en San Bernardino no es solo una decisión técnica, es un acto de sensibilidad climática, respeto por la naturaleza y adaptación al ritmo del lugar. En este proyecto, desarrollado para una familia que buscaba habitar sin invadir, la arquitectura se retira, se acomoda, y deja que los árboles sean los primeros protagonistas del terreno.

A pedido expreso del comitente, la vivienda se ubica al fondo del lote, permitiendo preservar una serie de árboles añosos en la parte frontal, que no solo estructuran un microclima favorable hacia el interior del terreno, sino que también generan una barrera natural de privacidad frente a la calle.

La planta baja se abre ampliamente hacia los patios, generando una relación fluida entre interior y exterior, sin obstáculos ni jerarquías visuales. Una segunda piel de ladrillos huecos en planta alta, funciona como parasol pasivo ante la orientación noroeste, la más agresiva del verano paraguayo. Esta envolvente filtra el sol y permite una circulación de aire que disipa el calor antes de que alcance la envolvente principal.

La vivienda se organiza en dos niveles:

En la planta baja se disponen dos habitaciones con un baño al costado, y el gran espacio social compuesto por cocina, comedor y estar integrados en un solo volumen abierto. Esta integración promueve una experiencia continua, luminosa, con visuales hacia el jardín y la piscina.

En la planta alta se ubican tres habitaciones, protegidas por el sistema de doble piel, con acceso directo a una terraza generosa que se apoya sobre la barbacoa del nivel inferior. Este recurso funcional permite además usar el techo como expansión, sin generar volúmenes innecesarios.

La barbacoa, ubicada al frente, se vincula tanto con la cocina como con el área de piscina, y funciona como espacio bisagra entre lo social y lo exterior. Su cubierta plana genera una terraza-mirador en la planta alta, que amplía el programa sin ocupar más superficie.

La galería o retiro posterior, protegida por la sombra de un árbol preexistente, constituye el corazón del vínculo entre casa, jardín y piscina. El deck perimetral, construido con ladrillos reciclados, refuerza la idea de una arquitectura sobria, sustentable y con memoria material.

El uso de materiales locales, con alta inercia térmica, responde a la búsqueda de eficiencia energética y economía. Se utilizan bloques cerámicos, losas de hormigón en planta baja y losas alivianadas con ladrillos huecos cerámicos en la cubierta. El sistema de parasoles de ladrillo en planta alta refuerza esta lógica de diseño pasivo.

La ventilación cruzada se garantiza en todos los ambientes, y la iluminación natural se controla mediante múltiples aberturas pequeñas, evitando la radiación directa pero asegurando confort visual. En lugar de grandes paños de vidrio expuestos al sol, se opta por una estrategia más fina, sensible al clima y coherente con la tradición constructiva local.

Vea + proyectos

Contáctenos!


Escribinos a nuestro Estudio de Arquitectura y Constructora.

Contactar por Whatsapp Clic Aquí